Lingue

Select your language

Acqua SPA®: Esperti in Piscine interrate e fuori terra

La progettazione piscine rappresenta il punto cruciale per dare vita al vostro sogno.

Che si tratti di piscine interrate, fuori terra o destinate a spazi esterni come giardini e cortili, presso Acqua SPA® ci dedichiamo con passione alla progettazione su misura; offrendo soluzioni innovative e personalizzate per soddisfare ogni esigenza.

Il nostro approccio alla progettazione piscine inizia con un'analisi approfondita delle vostre preferenze e delle caratteristiche dello spazio a disposizione.

Questo ci consente di comprendere appieno le vostre esigenze e di creare un design armonioso che si integri perfettamente nell'ambiente circostante, che sia un giardino, un cortile o altro spazio esterno.

Utilizziamo le più avanzate tecnologie di progettazione assistita al computer (CAD) per visualizzare in dettaglio il progetto prima di avviare la costruzione.

Durante questa fase, consideriamo diversi aspetti, inclusi dimensioni, forme, materiali, sistemi di filtraggio e disposizione degli accessori.

Garantiamo sempre il rispetto delle normative locali e di sicurezza, assicurando un risultato finale conforme alle leggi vigenti e sicuro per voi e la vostra famiglia.

Grazie alla nostra vasta esperienza nel settore delle costruzioni di piscine, siamo in grado di affrontare con competenza qualsiasi sfida di progettazione, sia che si tratti di piscine interrate o piscine fuori terra, destinate a spazi esterni come giardini, cortili o terrazzi.

Offriamo un servizio di consulenza specializzata per tutto il processo, fornendo consigli e suggerimenti per ottimizzare il design e massimizzare l'efficienza e la funzionalità della vostra piscina.

Affidatevi ad Acqua SPA® per la progettazione piscine e la costruzione della vostra piscina e lasciate che i nostri esperti vi guidino attraverso ogni fase del processo, garantendo un risultato finale che supererà le vostre aspettative.

Contattateci oggi stesso per una consulenza gratuita e iniziate il viaggio verso la realizzazione della vostra piscina interrata o esterna dei sogni con Acqua SPA®.

Lo studio di progettazione di ingegneria interno AD-Studioingegneria ha oltre venti anni di esperienza in progettazione piscine e realizzazione di impianti. 

Contattateci al n. telefonico 011.64.85.291 o venite a trovarci presso il nostro showroom di Moncalieri

Progetto esecutivo per piscina interrata in isoblok, forma classica, copertura a tapparella sommersa, con locale tecnico in opera, realizzato a Moncalieri, progetto e costruzione Acqua SPA®

progetto esecutivo per piscina interrata in isoblok, forma classica, copertura a tapparella sommersa, con locale tecnico in opera, realizzato a Moncalieri, progetto e costruzione Acqua SPA®

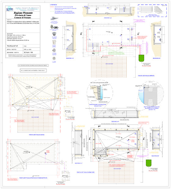
progetto esecutivo di piscina interrata in casseri isoblok, modello roma, locale tecnico prefabbricato, progetto e realizzazione di Acqua SPA®, nel comune di fossano

progetto esecutivo di piscina interrata in casseri isoblok, modello roma, locale tecnico prefabbricato, progetto e realizzazione di Acqua SPA®, nel comune di fossano

progetto strutturale in cemento armato di piscina interrata in isoblok, realizzata a Fossano da Acqua SPA®

progetto strutturale in cemento armato di piscina interrata in isoblok, realizzata a Fossano da Acqua SPA®

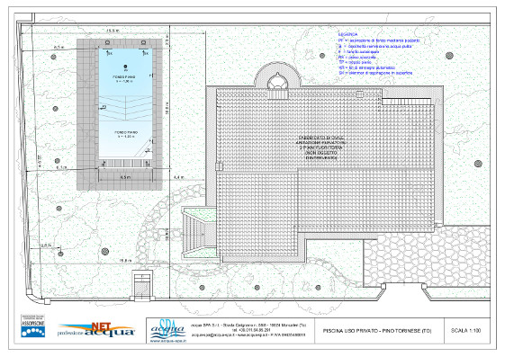
paesaggistica piscina interrata, forma classica, piscina realizzata a Pino Torinese da Acqua SPA®

paesaggistica piscina interrata, forma classica, piscina realizzata a Pino Torinese da Acqua SPA®

permesso di costruire per piscina interrata, forma classica, piscina costruita a Vercelli da Acqua SPA®

permesso di costruire per piscina interrata, forma classica, piscina costruita a Vercelli da Acqua SPA®

scia per piscina interrata, forma classica con deck, realizzata a Castiglione Torinese da Acqua SPA®

scia per piscina interrata, forma classica con deck, realizzata a Castiglione Torinese da Acqua SPA®

scia per piscina interrata, forma classica, piscina costruita a Vignole Borbera da Acqua Spa®

scia per piscina interrata, forma classica, piscina costruita a Vignole Borbera da Acqua Spa®

piscina interrata forma libera con spiaggia giochi, progetto Acqua SPA®

piscina interrata forma libera con spiaggia giochi, progetto Acqua SPA®

piscina interrata, costruzione con casseri isoblok, battuto in piastrelle di pietra, scala ad angolo, realizzazione Acqua SPA®

piscina interrata, costruzione con casseri isoblok, battuto in piastrelle di pietra, scala ad angolo, realizzazione Acqua SPA®

piscina interrata isoblok, forma classica, bordo a cascata, scala ad angolo, piscina progettata da Acqua SPA®

piscina interrata isoblok, forma classica, bordo a cascata, scala ad angolo, piscina progettata da Acqua SPA®

piscina interrata isoblok, forma classica con bordo a cascata e scala romana, piastrelle in pietra, di Acqua SPA®

piscina interrata isoblok, forma classica con bordo a cascata e scala romana, piastrelle in pietra, di Acqua SPA

piscina interrata isoblok, forma classica, con scala, area relax e copertura sommersa con carabottino in legno, progetto e costruzione Acqua SPA®

piscina interrata isoblok, forma classica, con scala, area relax e copertura sommersa con carabottino in legno, progetto e costruzione Acqua SPA®

piscina interrata isoblok, forma classica, scala in opera, copertura tapparella sommersa

piscina interrata isoblok, forma classica, scala in opera, copertura tapparella sommersa, Acqua SPA®

piscina interrata isoblok, forma classica, con area solarium in legno ricostruito di teck, skimmer sfioratore, Acqua SPA®

piscina interrata isoblok, forma classica, con area solarium in legno ricostruito di teck, skimmer sfioratore, Acqua SPA®

piscina interrata isoblok, con scala, faro subacqueo realizzata da Acqua SPA®

piscina interrata isoblok, con scala, faro subacqueo realizzata da Acqua SPA®

piscina interrata, costruzione in casseri isoblok, scala inox, realizzazione Acqua SPA®

piscina interrata, costruzione in casseri isoblok, scala inox, realizzazione Acqua SPA®

piscina interrata isoblok, scala in opera, fossa tuffi, Acqua SPA®

piscina interrata isoblok, scala in opera, fossa tuffi, Acqua SPA®

piscina interrata isoblok, forma classica, con area solarium in legno ricostruito di teck, skimmer sfioratore, Acqua SPA®

piscina interrata isoblok, forma classica, con area solarium in legno ricostruito di teck, skimmer sfioratore, Acqua SPA®

progetto esecutivo di piscina interrata isoblok, forma classica, progetto Acqua SPA®

progetto esecutivo di piscina interrata isoblok, forma classica, progetto Acqua SPA®

piscina interrata isoblok con, fondo piano, scala interna, bordo in legno di teck, progetto Acqua SPA®

piscina interrata isoblok, forma beach-time, fondo piano, scala interna, bordo in legno di teck, progetto Acqua SPA®

piscina interrata isoblok, forma beach-time, con fossa tuffi, scala interna tropezienne, progetto Acqua SPA®

piscina interrata isoblok, forma beach-time, con fossa tuffi, scala interna tropezienne, progetto Acqua SPA®

piscina interrata isoblok, forma beach-time, con scala interna,idromassaggio, locale tecnico e sistema di elettrolisi del sale, progetto Acqua SPA®

piscina interrata isoblok, forma beach-time, con scala interna,idromassaggio, locale tecnico e sistema di elettrolisi del sale, progetto Acqua SPA®

piscina interrata isoblok, forma classica, cascata infinity, scala tropezienne, deck, piscina realizzata a Montelupo, progetto Acqua SPA®

piscina interrata isoblok, forma classica, cascata infinity, scala tropezienne, deck, piscina realizzata a Montelupo, progetto Acqua SPA®

 piscina interrata isoblok, fondo piano, con sistema di riscaldamento, progetto Acqua SPA®

piscina interrata isoblok, fondo piano, con sistema di riscaldamento, progetto Acqua SPA®

piscina interrata isoblok, forma classica, scala interna, fondo piano, con sistema di elettrolisi del sale, progetto Acqua SPA®

piscina interrata isoblok, forma classica, scala interna, fondo piano, con sistema di elettrolisi del sale, progetto Acqua SPA®

piscina interrata isoblok, forma classica, scala interna, locale tecnico interrato, progetto Acqua SPA®

piscina interrata isoblok, forma classica, scala interna, locale tecnico interrato, progetto Acqua SPA®

piscina interrata isoblok, forma classica, scala interna, riscaldamento con pompa di calore, progetto Acqua SPA®

piscina interrata isoblok, forma classica, scala interna, riscaldamento con pompa di calore, progetto Acqua SPA®

piscina interrata per riabilitazione, forma classica, fondo piano, con sollevatore per carrozzina disabili, progetto Acqua SPA®

piscina interrata per riabilitazione, forma classica, fondo piano, con sollevatore per carrozzina disabili, progetto Acqua SPA®

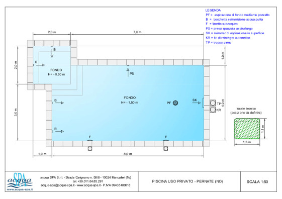
piscina interrata isoblok, forma caraibi, fondo piano, con idromassaggio ed area relax, progetto e realizzazione Acqua SPA®

piscina interrata isoblok, forma caraibi, fondo piano, con idromassaggio ed area relax, progetto e realizzazione Acqua SPA®, piscina costruita a Pernate

piscina interrata isoblok, forma classica, copertura tapparella sommersa a carabottino, costruita a Pino Torinese da Acqua SPA®

piscina interrata isoblok, forma classica, copertura tapparella sommersa a carabottino, costruita a Pino Torinese da Acqua SPA®

piscina interrata isoblok, forma classica, fondo piano, scala inox, piscina realizzata a Leinì, progetto e costruzione Acqua SPA®

piscina interrata isoblok, forma classica, fondo piano, scala inox, piscina realizzata a Leinì, progetto e costruzione Acqua SPA®

piscina interrata isoblok, forma classica, fondo piano, solarium, scala e locale tecnico, realizzata da Acqua SPA®

piscina interrata isoblok, forma classica, fondo piano, solarium, scala e locale tecnico, realizzata a Vercelli da Acqua SPA®

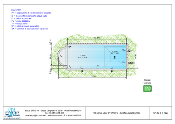
piscina interrata isoblok, forma relax, fossa tuffi, scala romana, piscina realizzata a Moncalieri, progetto e costruzione Acqua SPA®

piscina interrata isoblok, forma relax, fossa tuffi, scala romana, piscina realizzata a Moncalieri, progetto e costruzione Acqua SPA®

piscina interrata isoblok con scala ad angolo. costruita a Cherasco, progetto e realizzazione Acqua SPA®

piscina interrata isoblok con scala ad angolo. costruita a Cherasco, progetto e realizzazione Acqua SPA®

piscina interrata isoblok, forma taormina, fossa tuffi, con spiaggia, idromassaggio cervicale, giochi d'acqua, piscina costruita a Moncalieri progetto e realizzazione Acqua SPA®

piscina interrata isoblok, forma taormina, fossa tuffi, con spiaggia, idromassaggio cervicale, giochi d'acqua, piscina costruita a Moncalieri progetto e realizzazione Acqua SPA®

 

 

Acqua SPA® S.r.l.

Strada Carignano, 58/8
10024 Moncalieri (Torino)
ITALIA
P. IVA 09435480018

 

Copyright

Copyright © 2026 Acqua SPA - progettazione e costruzione piscine interrate, piscine fuori terra, accessori - Moncalieri (Torino) - ITALY. All Rights Reserved.